Villa a schiera d'angolo in vendita

Roma, Via cesare brandi - Tor Vergata Nuova
€ 429.000
6 locali 6 locali
160 Mq 160 Mq
3 bagni 3 bagni

Villa a schiera d'angolo in vendita

Roma, Via cesare brandi - Tor Vergata Nuova

Descrizione annuncio

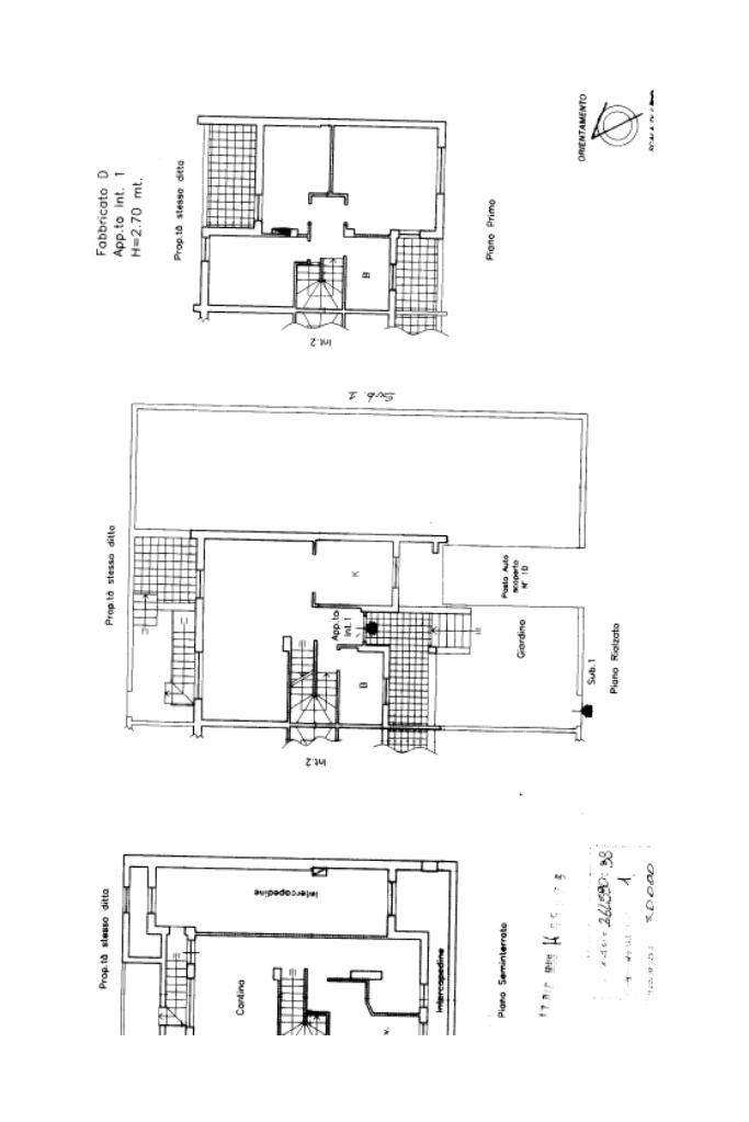
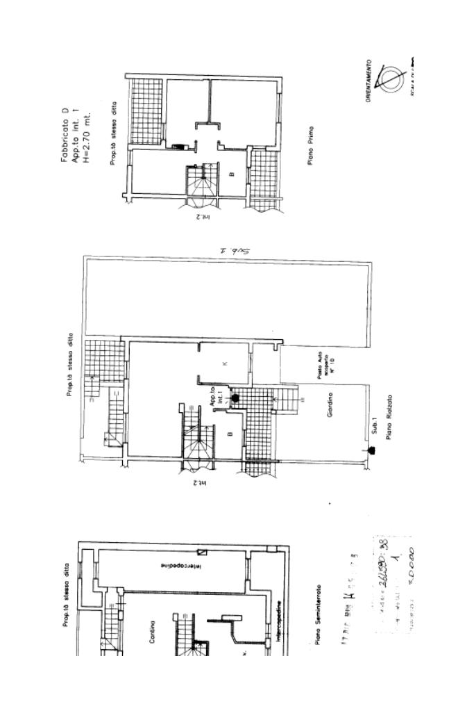
Proponiamo in vendita, nel cuore di Tor Vergata Nuova, una splendida villa a schiera angolare con 110 mq di giardino privato.

La proprietà si sviluppa su una superficie complessiva di 160 mq, distribuiti su più livelli e progettati per offrire comfort e funzionalità: accedendo all’immobile troviamo una luminosa zona giorno composta da un ampio salone, cucina separata e bagno finestrato. Il piano superiore, ad uso residenziale, ospita tre camere da letto, di cui due con accesso al balcone, oltre ad un ulteriore bagno finestrato. Al piano seminterrato, collegato sia internamente che tramite ingresso indipendente, si sviluppa una spaziosa sala hobby: ambiente open space arricchito da camino a pellet, angolo cottura, intercapedine adibita a dispensa ed un ulteriore servizio.

L’immobile si presenta in ottimo stato grazie a recenti interventi di ristrutturazione che hanno interessato la pavimentazione interna ed esterna. È inoltre dotato di grate di sicurezza, impianto di climatizzazione, tende da sole e sistema di allarme perimetrale.

L'agenzia Tecnocasa Vermicino presidia un mercato dinamico che collega Via Tuscolana ai centri di ricerca di Frascati e tutta la zona limitrofa di Tor Vergata Nuova e Casal Morena - Ponte Linari, rendendola una zona ottimale sia per famiglie che cercano la tranquillità vicino ai servizi, che per gli investitori che puntano alla locazione per studenti e ricercatori.

Abbiamo seguito numerose vendite e trattative nelle vie principali di Tor Vergata Nuova come Jean Paul Sartre, Galvano della Volpe, Via Ugo Spirito maturando una conoscenza approfondita del mercato locale e divenendo esperti della legge 167 con relativa pratica di affrancazione offrendo consulenza qualificata su tutte le problematiche legate al diritto di superficie.

Il quartiere offre una vasta gamma di servizi, rendendolo un luogo ideale per vivere e lavorare. Numerosi centri commerciali come Tor Vergata, La Romanina e supermercati (Carrefour, Eurospin e Iper Pewex) garantiscono un facile accesso a beni di consumo, mentre le attività commerciali locali aggiungono un tocco di autenticità al tessuto sociale. I ristoranti e le pizzerie presenti riflettono la ricchezza della tradizione culinaria romana, offrendo opzioni per tutti i gusti. Le aree verdi e i parchi, come il Parco di Ponte Linari, offrono spazi ricreativi per attività all'aperto, promuovendo uno stile di vita sano e attivo. Le piste ciclabili, centri sportivi come “Tennis Country” e le aree fitness contribuiscono ulteriormente a creare un ambiente che incoraggia la partecipazione della comunità ad attività sportive e di svago. La presenza di efficienti collegamenti di trasporto pubblico, incluse stazioni della metropolitana e fermate degli autobus, facilita gli spostamenti all'interno del quartiere, verso il centro di Roma, e verso i Castelli grazie alle linee Schiaffini, rendendo questa zona una scelta strategica per chiunque voglia godere dei servizi della città senza rinunciare alla tranquillità della periferia.

Mostra tutto

Nelle vicinanze

Trasporto pubblico Trasporto pubblico
Passolombardo/Botte Luciano 1
Passolombardo/Botte Luciano 1
110 m
Passolombardo/Botte Luciano 2
Passolombardo/Botte Luciano 2
120 m
Ricariche auto elettriche Ricariche auto elettriche
Area di Servizio Frascati Ovest
2,1 Km
Area di Servizio Frascati Est (Esso)
2,1 Km
Roma Raf Vallone 12 | EnelX
3,0 Km
Scuole Scuole
Fondazione Universitaria INUIT Tor Vergata
1,2 Km
Orto Botanico Univ. Tor Vergata
1,5 Km
Scuole
1,5 Km
Università degli Studi di Roma Tor Vergata - Ecologia Sperimentale e Acquacoltura
1,6 Km
Università degli Studi di Roma Tor Vergata - Rettorato
1,8 Km
Farmacia Farmacia
Farmacia Mastrogiovanni Maria
210 m
Farmacia
1,9 Km
Dottoressa Silvia Gallo
2,3 Km
Farmacia Romanina
2,6 Km
Farmacap Gasperina
2,7 Km
Ospedali Ospedali
Centro Regionale del Lazio per i Trapianti e le patologie collegate
2,0 Km
Policlinico Tor Vergata
2,4 Km
Pronto Soccorso Policlinico Tor Vergata
2,5 Km
Supermercati Supermercati
Carrefour Market
160 m
EuroSpin
920 m
Iper Pewex
1,1 Km
PAM
1,6 Km
Eurospin
1,6 Km
Negozi Negozi
Pasticceria Pirri
790 m
Il Fornaio di Tor Vergata
1,1 Km
Combipel
1,2 Km
Spatola Vincenzo
1,2 Km
XMarket
1,3 Km
Bar Bar
Bar
2,3 Km
Malecón Roma
2,4 Km
Wood Roma
2,4 Km
Replatz sport bar since 1960
2,9 Km
Ristoranti Ristoranti
Buddha Smile
120 m
Ristoranti
480 m
Il cavalluccio marino
680 m
Rosso pachino
810 m
New Stone Age
1,1 Km
Mostra tutto

Caratteristiche

Rif.:
61203201
Piano:
Su più livelli di 3
Totale piani:
3
Posti auto:
1
Balconi:
1
Terrazzi:
2
Mostra tutto
Prezzo Prezzo
€ 429.000
Rata mutuo Rata mutuo
€ 2.036 / mese
Spese annue Spese annue
€ 720
Proponi il tuo prezzoProponi il tuo prezzo
Immobile valutato con T·Valuta

Classe Energetica

E
E
E
E
E
E
E
E
E
EP globale non rinnovabile:
131.26 kW h/m² anno
EP globale rinnovabile:
2.35 kW h/m² anno
EP invernale del fabbricato:
EP estiva del fabbricato:
Anno di costruzione:
2001
Riscaldamento:
Autonomo
Tipo impianto:
A radiatori
Tipo alimentazione:
Metano

Ti interessa visionare l'immobile?

Fissa un appuntamento  Fissa un appuntamento

Richiedi informazioni

Clicca su Leggi per aprire l'informativa
* Questi campi sono obbligatori

Calcola il tuo mutuo

Semplice e senza impegno
Anticipo

( % )
Mutuo

( % )

pochi semplici passi

inserisci i tuoi dati
Questionario completato
Grazie per aver richiesto un appuntamento senza impegno con un nostro Consulente del Credito e Assicurativo.

Hai inserito correttamente tutti i dati necessari e a breve riceverai una e-mail con un link da convalidare per inviare i tuoi dati.
Affiliato
Vermicino 3 Srls
Via Di Vermicino, 562 00133 Roma (RM)

Il nostro staff


  • Lorenzo Bonelli
    Affiliato

  • Orazio Resta
    Collaboratore

  • Alessandro Mammola
    Collaboratore

  • Federica Raponi
    Coordinatrice
Via Di Vermicino, 562 00133 Roma (RM)
Zona: Vermicino - Centroni - Tor Vergata
Mostra su mappa
Orari: 09:00/13:00 - 15:30/19:30
Affiliato
Vermicino 3 Srls
Via Di Vermicino, 562 00133 Roma (RM)

2026 Tecnocasa Franchising S.p.A. - P. IVA 08365160152 - Via Monte Bianco 60/A 20089 Rozzano (MI). Ogni agenzia ha un proprio titolare ed è autonoma. Privacy policy | Policy utilizzo | Cookie policy