Villa a schiera d'angolo in vendita

Roma, Via di Casal Morena - Anagnina Casal Morena
€ 255.000
5 locali 5 locali
130 Mq 130 Mq
3 bagni 3 bagni

Villa a schiera d'angolo in vendita

Roma, Via di Casal Morena - Anagnina Casal Morena

Descrizione annuncio

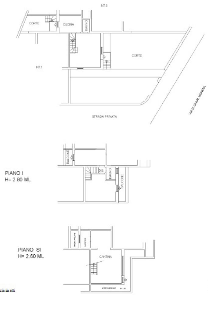
Proponiamo in vendita porzione angolare disposta su 3 livelli con giardino e posti auto interni.
L'immobile si presenta in buono stato ed è così suddiviso:
Piano rialzato composto da salone, cucina con accesso sul giardino retrostante e bagno;
Piano primo RESIDENZIALE composto da 2 camere da letto con balcone e bagno con doccia;
Piano seminterrato composto da sala hobby con camino, bagno con vasca ed intercapedine ispezionabile.
Completa la proprietà il giardino angolare e vari posti auto interni.

L'agenzia Tecnocasa Vermicino presidia un mercato dinamico che collega Via Tuscolana ai centri di ricerca di Frascati e tutta la zona limitrofa di Tor Vergata Nuova e Casal Morena - Ponte Linari, rendendola una zona ottimale sia per famiglie che cercano la tranquillità vicino ai servizi, che per gli investitori che puntano alla locazione per studenti e ricercatori. La nostra profonda conoscenza, legata a vendite effettuate in vie chiave come Via di Vermicino lato Via Tuscolana, Via Anagnina, Via del Fosso di Sant’Andrea, Via Publio Elio, Via di Campo Romano, Via Flavia Demetria, Piazza Castro Libero, Via di Casal Morena e Via di San Matteo, ci permette di offrire valutazioni precise basate sul reale venduto.

Con oltre 10 anni di esperienza, supportiamo sia chi desidera vendere per 'upgrading' abitativo, sfruttando la nostra banca dati che conta centinaia di richieste attive per soluzioni indipendenti o semi, o bilocali , trilocali con giardino, tipologie più ricercate in questa fascia verde tra Roma e i Castelli; sia chi vuole acquistare un terreno grazie alla conoscenza maturata sulle dinamiche urbanistiche, in particolare per il piano Zona “O35 Ponte Linari – Campo Romano” deliberato ed in fase di attuazione.

Abbiamo seguito numerose vendite e trattative nelle vie principali di Tor Vergata Nuova come Jean Paul Sartre, Galvano della Volpe, Via Ugo Spirito maturando una conoscenza approfondita del mercato locale e divenendo esperti della legge 167 con relativa pratica di affrancazione offrendo consulenza qualificata su tutte le problematiche legate al diritto di superficie.

Il quartiere offre una vasta gamma di servizi, rendendolo un luogo ideale per vivere e lavorare. Numerosi centri commerciali come Tor Vergata, La Romanina e supermercati (Carrefour, Eurospin e Iper Pewex) garantiscono un facile accesso a beni di consumo, mentre le attività commerciali locali aggiungono un tocco di autenticità al tessuto sociale. I ristoranti e le pizzerie presenti riflettono la ricchezza della tradizione culinaria romana, offrendo opzioni per tutti i gusti. Le aree verdi e i parchi, come il Parco di Ponte Linari, offrono spazi ricreativi per attività all'aperto, promuovendo uno stile di vita sano e attivo. Le piste ciclabili, centri sportivi come “Tennis Country” e le aree fitness contribuiscono ulteriormente a creare un ambiente che incoraggia la partecipazione della comunità ad attività sportive e di svago. La presenza di efficienti collegamenti di trasporto pubblico, incluse stazioni della metropolitana e fermate degli autobus, facilita gli spostamenti all'interno del quartiere, verso il centro di Roma, e verso i Castelli grazie alle linee Schiaffini, rendendo questa zona una scelta strategica per chiunque voglia godere dei servizi della città senza rinunciare alla tranquillità della periferia.

Mostra tutto

Nelle vicinanze

Trasporto pubblico Trasporto pubblico
Ciampino
Ciampino
2,3 Km
Acqua Acetosa
Acqua Acetosa
2,8 Km
Casal Morena/Servilia
Casal Morena/Servilia
150 m
Casal Morena/Callicrate
Casal Morena/Callicrate
180 m
Ricariche auto elettriche Ricariche auto elettriche
Roma Raf Vallone 12 | EnelX
2,4 Km
CM Motors | EnelX
2,4 Km
EnelX EVAD IKEA Anagnina
2,5 Km
IKEA Roma Anagnina
2,7 Km
Roma CC Anagnina | EnelX fast
2,9 Km
Scuole Scuole
Istituto Comprensivo Gianni Rodari
280 m
Scuola Materna Maria Bambina
410 m
Scuole
1,1 Km
Scuola 'Monsignor Francesco Saverio Petagnà
1,4 Km
Scuola Media Anna Magnani
1,4 Km
Farmacia Farmacia
Farmacia Morena Del Dott. Scarno' S.A.S.
660 m
Dottoressa Silvia Gallo
680 m
Farmacia Riccioni
1,5 Km
Farmacia
1,6 Km
Farmacap Gasperina
2,1 Km
Supermercati Supermercati
Carrefour Market - Supermercato
510 m
Eurospin
760 m
Punto Simply
930 m
Iper Pewex
1,2 Km
PAM
1,2 Km
Negozi Negozi
Forno Nonna Iole
710 m
Antiche tradizioni
960 m
Dolce e Salato
1,1 Km
Beauty Shoes
1,1 Km
Spatola Vincenzo
1,2 Km
Bar Bar
Murolo
1,5 Km
ORION
1,9 Km
Malecón Roma
2,2 Km
Wood Roma
2,2 Km
BUDDHA BAR
2,4 Km
Ristoranti Ristoranti
Ristorante Orientale Wok - Okura
120 m
Antica Fontana Express
630 m
Il Fornaccio 2
860 m
Mr. Mad
910 m
Ristorante L'ostrica
990 m
Mostra tutto

Caratteristiche

Rif.:
61198412
Totale piani:
3
Posti auto:
2
Balconi:
2
Camere da letto:
2
Arredamento:
Assente
Mostra tutto
Prezzo Prezzo
€ 255.000
Rata mutuo Rata mutuo
€ 1.210 / mese
Spese annue Spese annue
€ 600
Proponi il tuo prezzoProponi il tuo prezzo

Classe Energetica

F
F
F
F
F
F
F
F
F
EP globale non rinnovabile:
215.96 kW h/m² anno
EP globale rinnovabile:
0.10 kW h/m² anno
EP invernale del fabbricato:
EP estiva del fabbricato:
Anno di costruzione:
1991
Riscaldamento:
Autonomo
Tipo impianto:
A radiatori
Tipo alimentazione:
Metano

Ti interessa visionare l'immobile?

Fissa un appuntamento  Fissa un appuntamento

Richiedi informazioni

Clicca su Leggi per aprire l'informativa
* Questi campi sono obbligatori

Calcola il tuo mutuo

Semplice e senza impegno
Anticipo

( % )
Mutuo

( % )

pochi semplici passi

inserisci i tuoi dati
Questionario completato
Grazie per aver richiesto un appuntamento senza impegno con un nostro Consulente del Credito e Assicurativo.

Hai inserito correttamente tutti i dati necessari e a breve riceverai una e-mail con un link da convalidare per inviare i tuoi dati.
Affiliato
Vermicino 3 Srls
Via Di Vermicino, 562 00133 Roma (RM)

Il nostro staff


  • Lorenzo Bonelli
    Affiliato

  • Orazio Resta
    Collaboratore

  • Alessandro Mammola
    Collaboratore

  • Federica Raponi
    Coordinatrice
Via Di Vermicino, 562 00133 Roma (RM)
Zona: Vermicino - Centroni - Tor Vergata
Mostra su mappa
Orari: 09:00/13:00 - 15:30/19:30
Affiliato
Vermicino 3 Srls
Via Di Vermicino, 562 00133 Roma (RM)

2026 Tecnocasa Franchising S.p.A. - P. IVA 08365160152 - Via Monte Bianco 60/A 20089 Rozzano (MI). Ogni agenzia ha un proprio titolare ed è autonoma. Privacy policy | Policy utilizzo | Cookie policy