Villa singola in vendita

Roma, Via del Fosso di Sant'Andrea - Centroni
€ 335.000
7 locali 7 locali
302 Mq 302 Mq
4 bagni 4 bagni

Villa singola in vendita

Roma, Via del Fosso di Sant'Andrea - Centroni

Descrizione annuncio

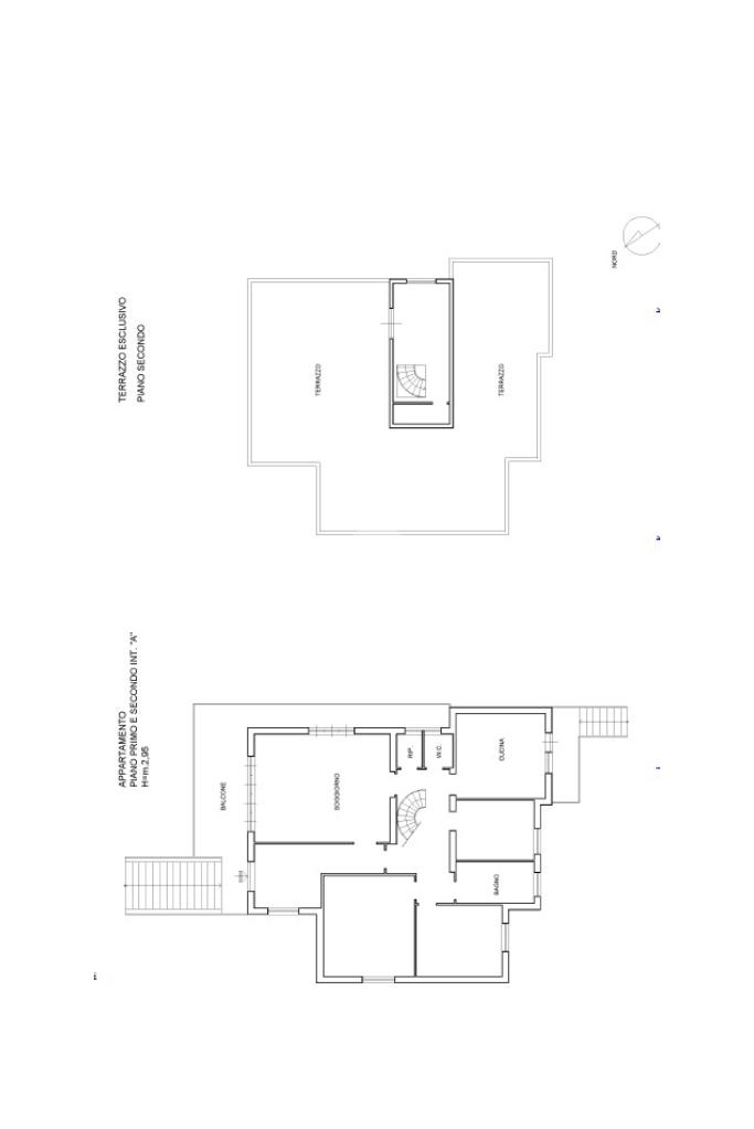
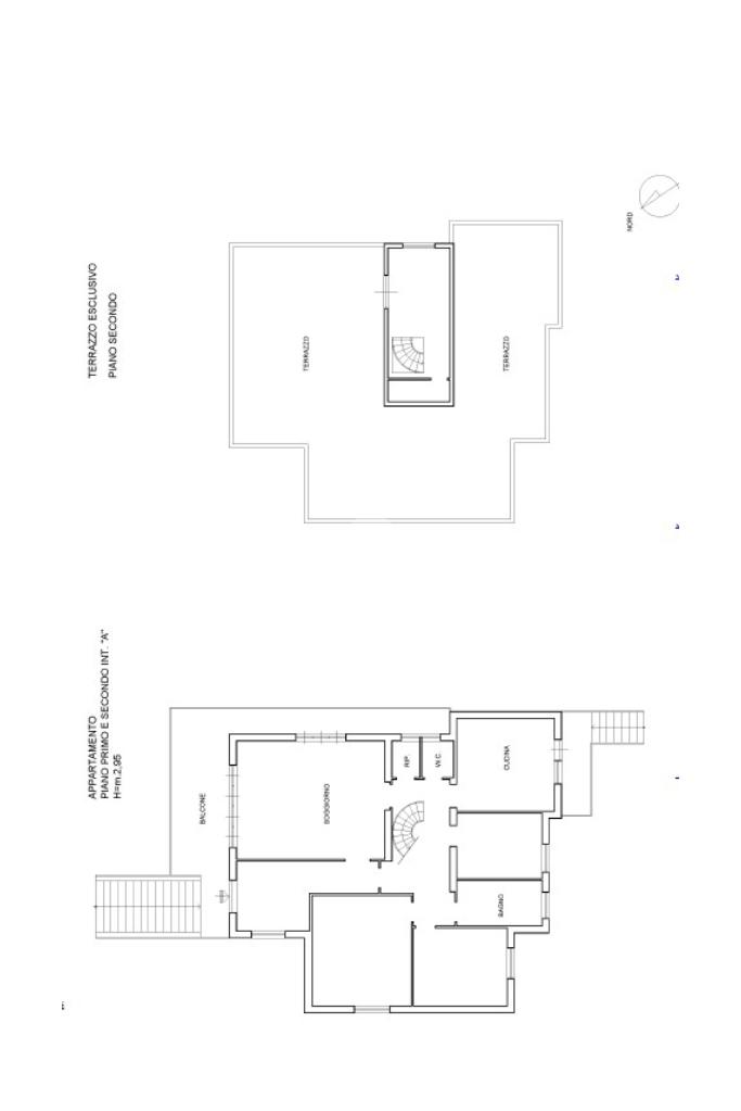
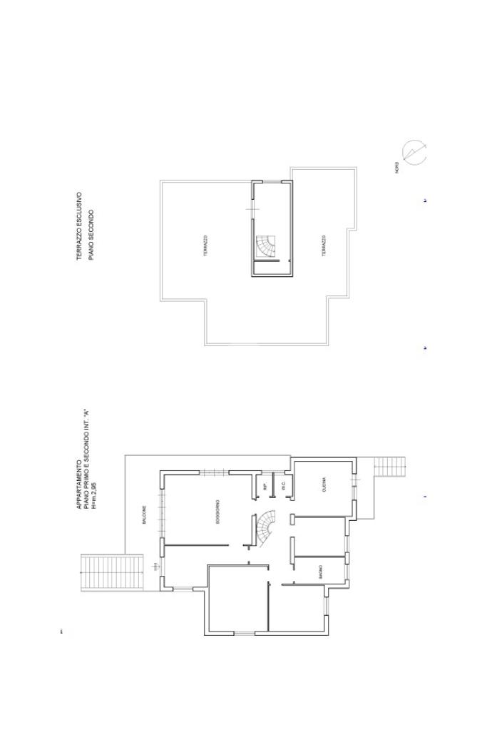
Proponiamo in vendita una villa singola di 115 mq con terreno di 1.515 mq, cantina di 63 mq e box auto di 52 mq.

Accedendo al piano primo si estende l'immobile composto dal salone doppio con balcone semiperimetrale, cucina abitabile con secondo balcone, tre camere da letto, ripostiglio e doppi servizi.

Attraverso una scala interna accediamo al piano superiore dove è presente un locale tecnico da cui si accede al terrazzo di 104 mq con vista panoramica.

Il piano terra è composto da una cantina ed un garage attualmente adibiti ad abitazione.

Completa la proprietà il terreno che si estende sui 4 lati dell'abitazione, in parte verde ed in parte mattonato.

L'immobile si presenta allo stato originale e si presta ad una suddivisione in più unità abitative.

L'agenzia Tecnocasa Vermicino presidia un mercato dinamico che collega Via Tuscolana ai centri di ricerca di Frascati e tutta la zona limitrofa di Tor Vergata Nuova e Casal Morena - Ponte Linari, rendendola una zona ottimale sia per famiglie che cercano la tranquillità vicino ai servizi, che per gli investitori che puntano alla locazione per studenti e ricercatori.

La nostra profonda conoscenza, legata a vendite effettuate in vie chiave come Via di Vermicino lato Via Tuscolana, Via Anagnina, Via del Fosso di Sant’Andrea, Via Publio Elio, Via di Campo Romano , Via Flavia Demetria, Piazza Castro Libero, Via di Casal Morena e Via di San Matteo, ci permette di offrire valutazioni precise basate sul reale venduto.

Con oltre 10 anni di esperienza, supportiamo sia chi desidera vendere per 'upgrading' abitativo, sfruttando la nostra banca dati che conta centinaia di richieste attive per soluzioni indipendenti o semi, o bilocali , trilocali con giardino, tipologie più ricercate in questa fascia verde tra Roma e i Castelli; sia chi vuole acquistare un terreno grazie alla conoscenza maturata sulle dinamiche urbanistiche, in particolare per il piano Zona “O35 Ponte Linari – Campo Romano” deliberato ed in fase di attuazione. Vivere a Vermicino significa scegliere l'equilibrio perfetto tra servizi urbani e tranquillità residenziale. Il mercato immobiliare locale mostra una resilienza superiore alla media romana grazie alla vicinanza con il Polo Universitario di Tor Vergata e i centri di ricerca INFN ed ESA-ESRIN.

Abbiamo seguito numerose vendite e trattative nelle vie principali di Tor Vergata Nuova come Jean Paul Sartre, Galvano della Volpe, Via Ugo Spirito maturando una conoscenza approfondita del mercato locale e divenendo esperti della legge 167 con relativa pratica di affrancazione offrendo consulenza qualificata su tutte le problematiche legate al diritto di superficie.

Il quartiere offre una vasta gamma di servizi, rendendolo un luogo ideale per vivere e lavorare. Numerosi centri commerciali come Tor Vergata, La Romanina e supermercati (Carrefour, Eurospin e Iper Pewex) garantiscono un facile accesso a beni di consumo, mentre le attività commerciali locali aggiungono un tocco di autenticità al tessuto sociale. I ristoranti e le pizzerie presenti riflettono la ricchezza della tradizione culinaria romana, offrendo opzioni per tutti i gusti.

Mostra tutto

Nelle vicinanze

Trasporto pubblico Trasporto pubblico
Acqua Acetosa
Acqua Acetosa
2,3 Km
Ciampino
Ciampino
2,7 Km
Fosso di S. Andrea/V.lo Anagnino
Fosso di S. Andrea/V.lo Anagnino
50 m
V.lo Anagnino/Fosso di S. Andrea
V.lo Anagnino/Fosso di S. Andrea
90 m
Ricariche auto elettriche Ricariche auto elettriche
CM Motors | EnelX
2,7 Km
Scuole Scuole
Scuola 'Monsignor Francesco Saverio Petagnà
460 m
Scuola Materna Maria Bambina
1,2 Km
Istituto Comprensivo Gianni Rodari
1,6 Km
Direzione Didattica "il Circolo" Scuola Elementare
1,7 Km
Istituto Compensivo Pietro Marcellini Corradini
1,9 Km
Farmacia Farmacia
Farmacia Morena Del Dott. Scarno' S.A.S.
1,2 Km
Farmacia
1,9 Km
Dottoressa Silvia Gallo
2,0 Km
Farmacia Riccioni
2,4 Km
Farmacia
2,6 Km
Supermercati Supermercati
Simply Market
350 m
Carrefour Market - Supermercato
930 m
Elite
990 m
Eurospin
1,2 Km
Punto Simply
1,6 Km
Negozi Negozi
Fashion Market
460 m
Forno Nonna Iole
660 m
La Bottega del Pane
1,1 Km
Spatola Vincenzo
1,5 Km
Bianco Calzature
1,9 Km
Bar Bar
Bar
1,7 Km
Murolo
2,2 Km
ORION
2,6 Km
BUDDHA BAR
2,8 Km
Ristoranti Ristoranti
Da Genato e Paolorasso
240 m
Casale That's Amore
530 m
Il Canneto
900 m
Pizza Service 2
1,0 Km
Antica Fontana Express
1,1 Km
Mostra tutto

Caratteristiche

Rif.:
61164216
Piano:
2 di 2 (Piano su più livelli)
Posti auto:
10
Balconi:
2
Terrazzi:
1
Camere da letto:
3
Mostra tutto
Prezzo Prezzo
€ 335.000
Rata mutuo Rata mutuo
€ 1.590 / mese
Spese annue Spese annue
€ 0
Proponi il tuo prezzoProponi il tuo prezzo
Immobile valutato con T·Valuta

Classe Energetica

G
G
G
G
G
G
G
G
G
EP globale non rinnovabile:
175.00 kW h/m² anno
EP globale rinnovabile:
175.00 kW h/m² anno
EP invernale del fabbricato:
EP estiva del fabbricato:
Anno di costruzione:
1980
Riscaldamento:
Autonomo
Tipo impianto:
A radiatori
Tipo alimentazione:
Metano

Ti interessa visionare l'immobile?

Fissa un appuntamento  Fissa un appuntamento

Richiedi informazioni

Clicca su Leggi per aprire l'informativa
* Questi campi sono obbligatori

Calcola il tuo mutuo

Semplice e senza impegno
Anticipo

( % )
Mutuo

( % )

pochi semplici passi

inserisci i tuoi dati
Questionario completato
Grazie per aver richiesto un appuntamento senza impegno con un nostro Consulente del Credito e Assicurativo.

Hai inserito correttamente tutti i dati necessari e a breve riceverai una e-mail con un link da convalidare per inviare i tuoi dati.
Affiliato
Vermicino 3 Srls
Via Di Vermicino, 562 00133 Roma (RM)

Il nostro staff


  • Lorenzo Bonelli
    Affiliato

  • Orazio Resta
    Collaboratore

  • Alessandro Mammola
    Collaboratore

  • Federica Raponi
    Coordinatrice
Via Di Vermicino, 562 00133 Roma (RM)
Zona: Vermicino - Centroni - Tor Vergata
Mostra su mappa
Orari: 09:00/13:00 - 15:30/19:30
Affiliato
Vermicino 3 Srls
Via Di Vermicino, 562 00133 Roma (RM)

2026 Tecnocasa Franchising S.p.A. - P. IVA 08365160152 - Via Monte Bianco 60/A 20089 Rozzano (MI). Ogni agenzia ha un proprio titolare ed è autonoma. Privacy policy | Policy utilizzo | Cookie policy