 
			 
				Proponiamo in vendita una porzione di villa quadrifamiliare con ascensore interno, giardino e box auto.
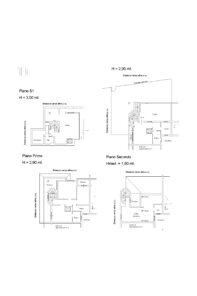
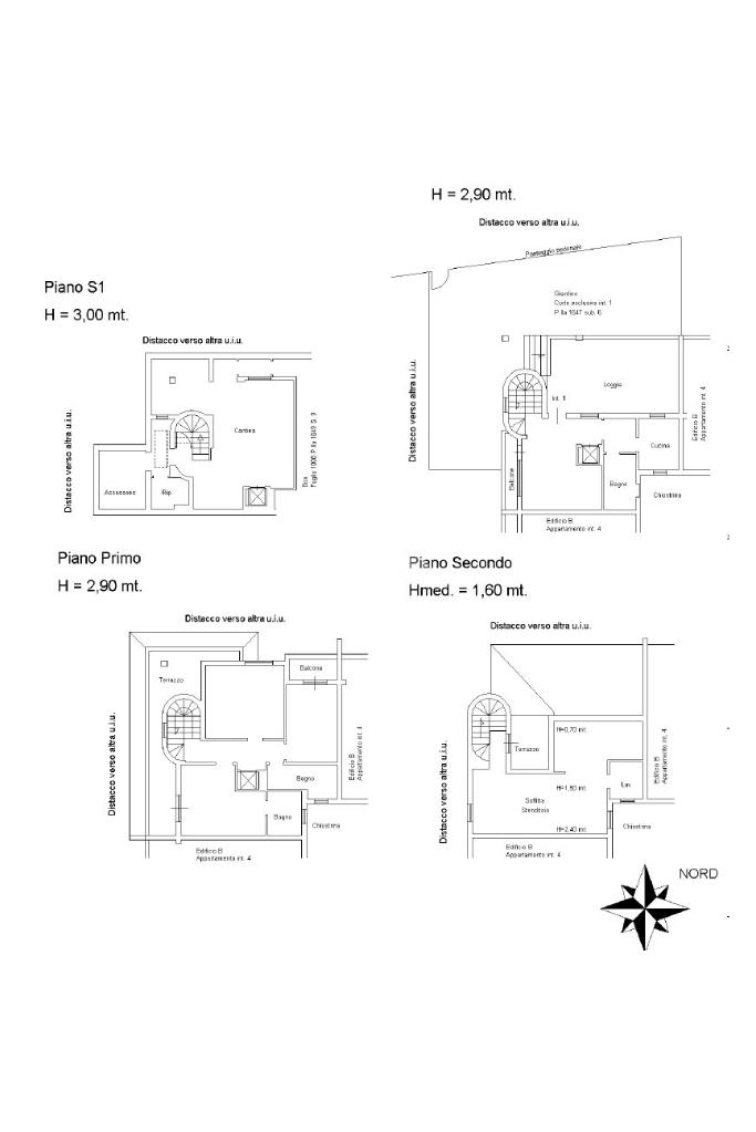
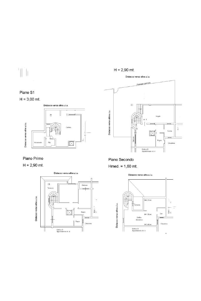
Accedendo dal cancelletto pedonale si estende il giardino angolare di circa 100 mq dal quale è possibile raggiungere l'ingresso del piano rialzato dove è presente la zona giorno composta dalla sala da pranzo, il salone nella loggia, il cucinotto, il bagno ed un balcone.
Al primo piano NON MANSARDATO accatastato come RESIDENZIALE troviamo tre camere da letto, di cui una con bagno in camera, un ulteriore bagno, il terrazzino ed il balcone.
Al piano superiore è presente un'ampia camera mansardata con bagno e terrazzino con vista; il piano seminterrato è caratterizzato da una sala hobby composta dal salone con camino, cucina, il bagno e la cantina. Completa il piano il box auto di 35mq.
L'immobile si presenta in buono stato, è fornito di inferriate, persiane, condizionatori, allarme e pannello solare da ripristinare.
La zona di nostra competenza comprende i quartieri di Vermicino-Tuscolana, Tor Vergata Nuova, Centroni, Casal Morena e Ponte Linari e si trova a 5 km dall'uscita 20 'La Romanina' del a 4 km dalla Via Anagnina, e a 3 km dal Casello Autostradale A1 Diramazione Roma Sud. Presso la nostra agenzia, troverete un team appassionato e competente, pronto ad assistervi in ogni fase del processo di vendita, acquisto o affitto di immobili. Collaboriamo con partner affidabili e qualificati per garantire un servizio completo e affidabile, dalla consulenza finanziaria, creditizia alla gestione burocratica e legale.
Siamo un punto di riferimento consolidato nel settore immobiliare del nostro territorio e ci differenziamo dalle altre agenzie concentrandoci esclusivamente sulla nostra zona di competenza. La nostra esperienza ultra decennale ci ha permesso di costruire una solida reputazione basata sulla fiducia, l'integrità e la professionalità e, grazie alla nostra profonda conoscenza del mercato locale, siamo in grado di offrire consigli personalizzati e soluzioni su misura per soddisfare le esigenze di ogni cliente.
Il quartiere offre una vasta gamma di servizi, rendendolo un luogo ideale per vivere e lavorare. Numerosi centri commerciali come Tor Vergata, La Romanina e supermercati (Carrefour, Eurospin e Iper Pewex) garantiscono un facile accesso a beni di consumo, mentre le attività commerciali locali aggiungono un tocco di autenticità al tessuto sociale. I ristoranti e le pizzerie presenti riflettono la ricchezza della tradizione culinaria romana, offrendo opzioni per tutti i gusti. Le aree verdi e i parchi, come il Parco di Ponte Linari, offrono spazi ricreativi per attività all'aperto, promuovendo uno stile di vita sano e attivo. Le piste ciclabili, centri sportivi come 'Tennis Country' e le aree fitness contribuiscono ulteriormente a creare un ambiente che incoraggia la partecipazione della comunità ad attività sportive e di svago. La presenza di efficienti collegamenti di trasporto pubblico, incluse stazioni della metropolitana e fermate degli autobus, facilita gli spostamenti all'interno del quartiere, verso il centro di Roma, e verso i Castelli grazie alle linee Schiaffini, rendendo questa zona una scelta strategica per chiunque voglia godere dei servizi della città senza rinunciare alla tranquillità della periferia.
 Immobile valutato con T·Valuta
Immobile valutato con T·Valuta
								Ti interessa visionare l'immobile?