Villa a schiera d'angolo in vendita

Roma, Via di S. Matteo - San Matteo
€ 240.000
Prezzo aggiornato
4 locali 4 locali
110 Mq 110 Mq
3 bagni 3 bagni

Villa a schiera d'angolo in vendita

Roma, Via di S. Matteo - San Matteo

Descrizione annuncio

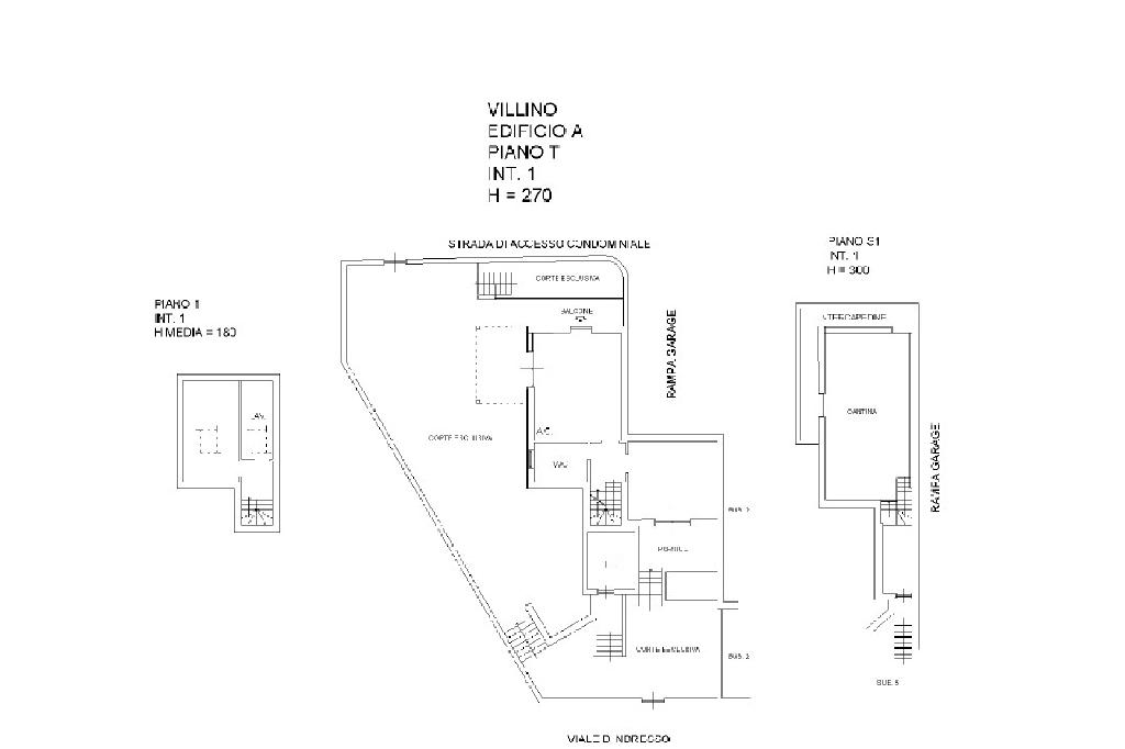
Proponiamo in vendita una porzione angolare di recente costruzione con giardino e box auto. Accedendo nella villa troviamo il soggiorno con l'angolo cottura, la camera da letto matrimoniale, il bagno finestrato con box doccia ed una stanza adibita a studio con portafinestra che consente l'accesso al giardino mattonato retrostante.

Salendo attraverso una scala in legno con led troviamo la camera da letto con cabina armadio (con predisposizione per il bagno).

Al piano seminterrato vi è poi la sala hobby, attualmente ambiente open space con predisposizione per l'angolo cottura ed il bagno.

Completa la proprietà il box auto di 35mq ed giardino di 150 mq circa. L'immobile si presenta in buono stato ed è fornito di inferriate, predisposizione per l'impianto di condizionamento e per l'impianto di allarme.

L'agenzia Tecnocasa Vermicino presidia un mercato dinamico che collega Via Tuscolana ai centri di ricerca di Frascati e tutta la zona limitrofa di Tor Vergata Nuova e Casal Morena - Ponte Linari, rendendola una zona ottimale sia per famiglie che cercano la tranquillità vicino ai servizi, che per gli investitori che puntano alla locazione per studenti e ricercatori.

La nostra profonda conoscenza, legata a vendite effettuate in vie chiave come Via di Vermicino lato Via Tuscolana, Via Anagnina, Via del Fosso di Sant’Andrea, Via Publio Elio, Via di Campo Romano , Via Flavia Demetria, Piazza Castro Libero, Via di Casal Morena e Via di San Matteo, ci permette di offrire valutazioni precise basate sul reale venduto.

Con oltre 10 anni di esperienza, supportiamo sia chi desidera vendere per 'upgrading' abitativo, sfruttando la nostra banca dati che conta centinaia di richieste attive per soluzioni indipendenti o semi, o bilocali , trilocali con giardino, tipologie più ricercate in questa fascia verde tra Roma e i Castelli; sia chi vuole acquistare un terreno grazie alla conoscenza maturata sulle dinamiche urbanistiche, in particolare per il piano Zona “O35 Ponte Linari – Campo Romano” deliberato ed in fase di attuazione. Vivere a Vermicino significa scegliere l'equilibrio perfetto tra servizi urbani e tranquillità residenziale. Il mercato immobiliare locale mostra una resilienza superiore alla media romana grazie alla vicinanza con il Polo Universitario di Tor Vergata e i centri di ricerca INFN ed ESA-ESRIN.

Abbiamo seguito numerose vendite e trattative nelle vie principali di Tor Vergata Nuova come Jean Paul Sartre, Galvano della Volpe, Via Ugo Spirito maturando una conoscenza approfondita del mercato locale e divenendo esperti della legge 167 con relativa pratica di affrancazione offrendo consulenza qualificata su tutte le problematiche legate al diritto di superficie.

Il quartiere offre una vasta gamma di servizi, rendendolo un luogo ideale per vivere e lavorare. Numerosi centri commerciali come Tor Vergata, La Romanina e supermercati (Carrefour, Eurospin e Iper Pewex) garantiscono un facile accesso a beni di consumo, mentre le attività commerciali locali aggiungono un tocco di autenticità al tessuto sociale. I ristoranti e le pizzerie presenti riflettono la ricchezza della tradizione culinaria romana, offrendo opzioni per tutti i gusti.

Mostra tutto

Nelle vicinanze

Trasporto pubblico Trasporto pubblico
Tor Vergata
Tor Vergata
1,6 Km
Frascati
Frascati
2,5 Km
Ponte Napoli/Tuscolana
Ponte Napoli/Tuscolana
330 m
Tuscolana/Acqualandroni
Tuscolana/Acqualandroni
350 m
Ricariche auto elettriche Ricariche auto elettriche
Area di Servizio Frascati Ovest
1,4 Km
Area di Servizio Frascati Est (Esso)
1,4 Km
Scuole Scuole
Istituto Compensivo Pietro Marcellini Corradini
410 m
Collegium Artis - Scuola di Musica
1,8 Km
Istituto Salesiano Villa Sora
1,8 Km
I.T.S.T. "Enrico Fermi" - Padiglione B
2,1 Km
Maestre Pie Filippini
2,1 Km
Farmacia Farmacia
Farmacia Comunale - Omeopatica
2,2 Km
Farmacia Aramini
2,6 Km
Farmacia San Pietro
2,6 Km
Farmacia Carafa
2,7 Km
Farmacia Mastrogiovanni Maria
2,7 Km
Ospedali Ospedali
Ospedale San Sebastiano di Frascati
1,9 Km
Pronto Soccorso Ospedale "San Sebastiano"
2,2 Km
Supermercati Supermercati
Leon
340 m
Conad
690 m
Eurospin
1,3 Km
Elite
2,3 Km
Supermercati
2,3 Km
Negozi Negozi
Oviesse
690 m
Spatola Vincenzo
2,0 Km
La Bottega del Pane
2,2 Km
Negozi
2,2 Km
Il Fornaio
2,5 Km
Bar Bar
Bar
440 m
Garage San Rocco
2,4 Km
Highlander
2,5 Km
Frascaffè
2,5 Km
IL Giusto Gusto
2,5 Km
Ristoranti Ristoranti
Taverna Pisano
710 m
Ristoranti
890 m
Chef Express
1,4 Km
Autogrill Frascati Est Oil 9211
1,5 Km
La Locanda del PalatoRaffinato
1,7 Km
Mostra tutto

Caratteristiche

Rif.:
61036490
Piano:
Su più livelli di 3
Totale piani:
3
Box:
1
Balconi:
1
Terrazzi:
1
Mostra tutto
Prezzo Prezzo
€ 240.000
Rata mutuo Rata mutuo
€ 1.139 / mese
Spese annue Spese annue
€ 800
Proponi il tuo prezzoProponi il tuo prezzo
Immobile valutato con T·Valuta

Altre caratteristiche

Classe Energetica

E
E
E
E
E
E
E
E
E
EP globale non rinnovabile:
70.16 kW h/m² anno
EP globale rinnovabile:
0.33 kW h/m² anno
EP invernale del fabbricato:
EP estiva del fabbricato:
Anno di costruzione:
2014
Riscaldamento:
Autonomo
Tipo impianto:
A radiatori
Tipo alimentazione:
Metano

Prezzo ridotto di €1 (6%%)

Ti interessa visionare l'immobile?

Fissa un appuntamento  Fissa un appuntamento

Richiedi informazioni

Clicca su Leggi per aprire l'informativa
* Questi campi sono obbligatori

Calcola il tuo mutuo

Semplice e senza impegno
Anticipo

( % )
Mutuo

( % )

pochi semplici passi

inserisci i tuoi dati
Questionario completato
Grazie per aver richiesto un appuntamento senza impegno con un nostro Consulente del Credito e Assicurativo.

Hai inserito correttamente tutti i dati necessari e a breve riceverai una e-mail con un link da convalidare per inviare i tuoi dati.
Affiliato
Vermicino 3 Srls
Via Di Vermicino, 562 00133 Roma (RM)

Il nostro staff


  • Lorenzo Bonelli
    Affiliato

  • Orazio Resta
    Collaboratore

  • Alessandro Mammola
    Collaboratore

  • Federica Raponi
    Coordinatrice
Via Di Vermicino, 562 00133 Roma (RM)
Zona: Vermicino - Centroni - Tor Vergata
Mostra su mappa
Orari: 09:00/13:00 - 15:30/19:30
Affiliato
Vermicino 3 Srls
Via Di Vermicino, 562 00133 Roma (RM)

2026 Tecnocasa Franchising S.p.A. - P. IVA 08365160152 - Via Monte Bianco 60/A 20089 Rozzano (MI). Ogni agenzia ha un proprio titolare ed è autonoma. Privacy policy | Policy utilizzo | Cookie policy